

2-СТАЕН
Етаж:
3 от 6
Строителство:
Тухла
Година на построяване:
2027
Категория:
Продажба
Газ:
Да
Тец:
Не
Особености:
В строеж, С гараж, Асансьор, С паркинг, Интернет връзка, Лизинг, Санирaн, Контрол на достъпа, Видео наблюдение, В затворен комплекс, Възможност за дан. кредит
Описание на имота
🏡 НОВ СТРОЕЖ в кв. Овча купел 1 апартаменти и паркоместа и гаражи БЕЗ КОМИСИОННА от доказан строител с история
Предлагаме за продажба двустайни и тристайни апартаменти в новострояща се жилищна сграда в кв. Овча купел 1, на кръстовището на ул. 747-ма и ул. Зеленика.
Проектът се отличава с гъвкави условия за плащане, директна продажба без комисионна както и цена качество без аналог!
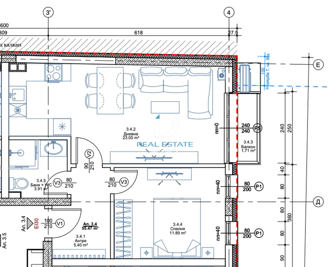
🏠 Апартамент 3.4 - Двустаен
Застроена площ: 55.47 кв.м
Мазе: 2.73 кв.м
Общи части: 11.15 кв.м
Обща площ: 69.35 кв.м
Разпределение:
Антре: 5.40 кв.м
Дневна с кухненски бокс: 23.00 кв.м
Спалня: 11.89 кв.м
Баня с тоалетна: 3.91 кв.м
Балкон: 1.71 кв.м
🏗️ Етапи на строителство
Разрешение за строеж: 04.09.2025 г.
Акт 14: септември 2026 г.
Акт 16: юни 2027 г.
💰 Условия за плащане
При подписване на предварителен договор: 20%
След готов изкоп: 20%
При издаване на Акт 14: 20%
При издаване на Акт 15: 30%
При издаване на Акт 16: 10%
🏢 Информация за сградата
Обща застроена площ: 2640.97 кв.м
Апартаменти:
Двустайни: 16 (9 свободни)
Тристайни: 8 (6 свободни)
Паркоместа:
Наземни: 8 (6 свободни)
Подземни гаражи: 9 (7 свободни)
📍 Локация и предимства
Спокойна и зелена среда в кв. Овча купел 1
Бърз достъп до основни пътни артерии
Близост до спирки на градски транспорт
Развита инфраструктура магазини, училища, детски градини, медицински услуги
✅ Без комисионна за купувача
✅ Гъвкави схеми на плащане
✅ Качествено ново строителство в утвърден жилищен район
📞 Отговорен представител: Иван Димитров
📱 Телефон: +359894923131
📧 E-mail: id.realestateagency@gmail.com



